Продажа помещения 140 м², офис 201, цена 42 000 000 рублей

  • Светлое помещение
  • Свежий ремонт
  • Cвой с/у
  • Цена продажи 42 000 000 рублей
  • Есть Арендатор ( Можно как ГАБ)
  • МАП 380 000 руб/месяц
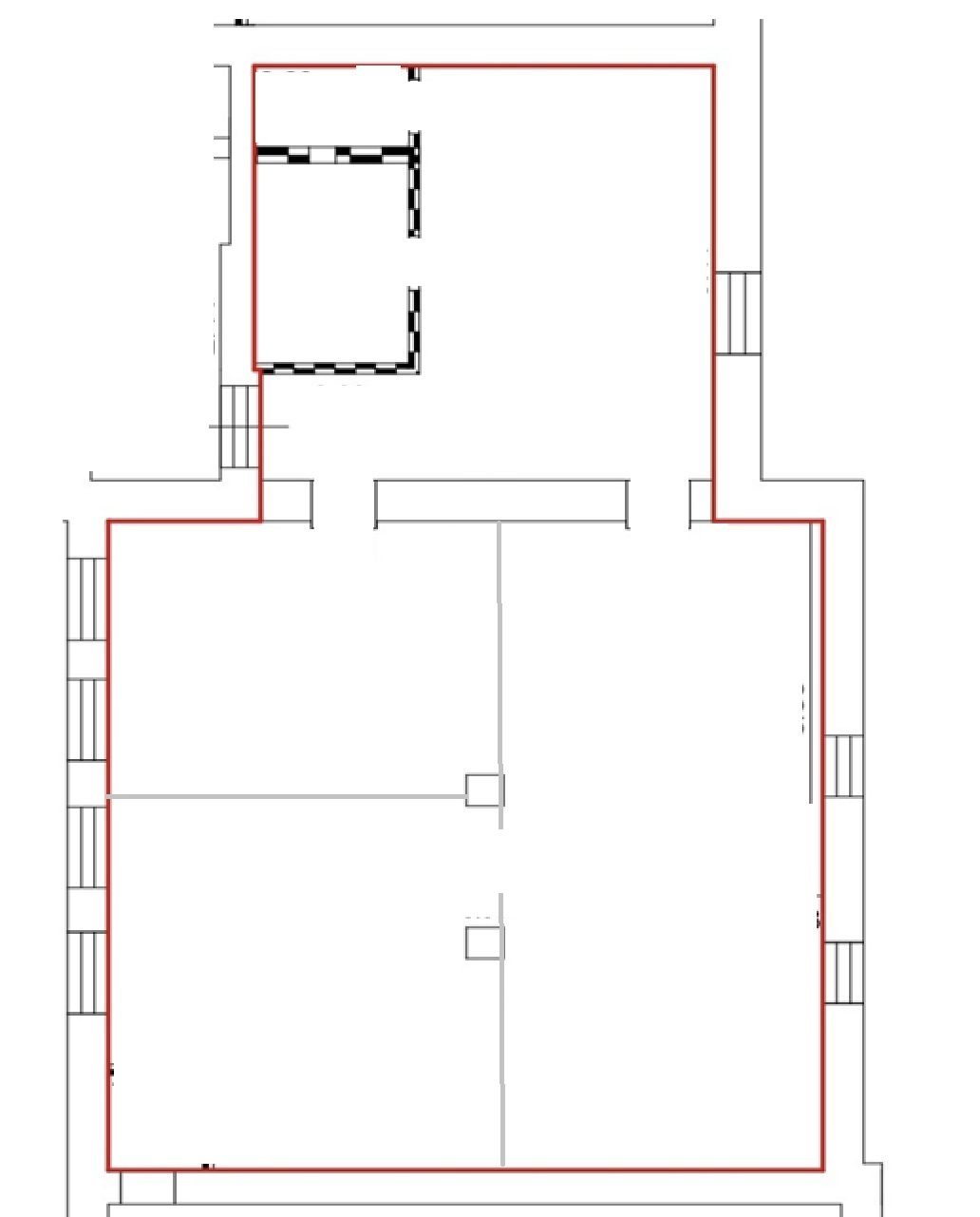
140
2 этаж
Окна на 2 стороны

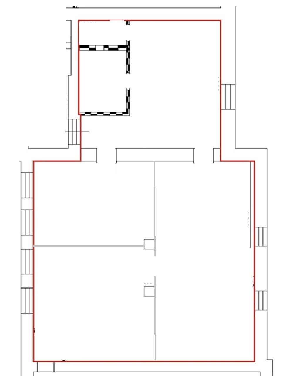
Планировка помещения

План помещения
Генплан пространства

Лучшие типовые
помещения
для бизнеса

Сотрудничаем с Агентами и Агентствами недвижимости. Условия сотрудничества по сдаче наших площадей в аренду, можно узнать по телефону: +7 ( 495) 500 75 11

Контакты

8 (495) 500-75-11
Колодезный переулок, дом 3 стр 25
Вы можете позвонить нам в любое время с 9.00 - 21.00  без выходных и праздников