Заказать звонок

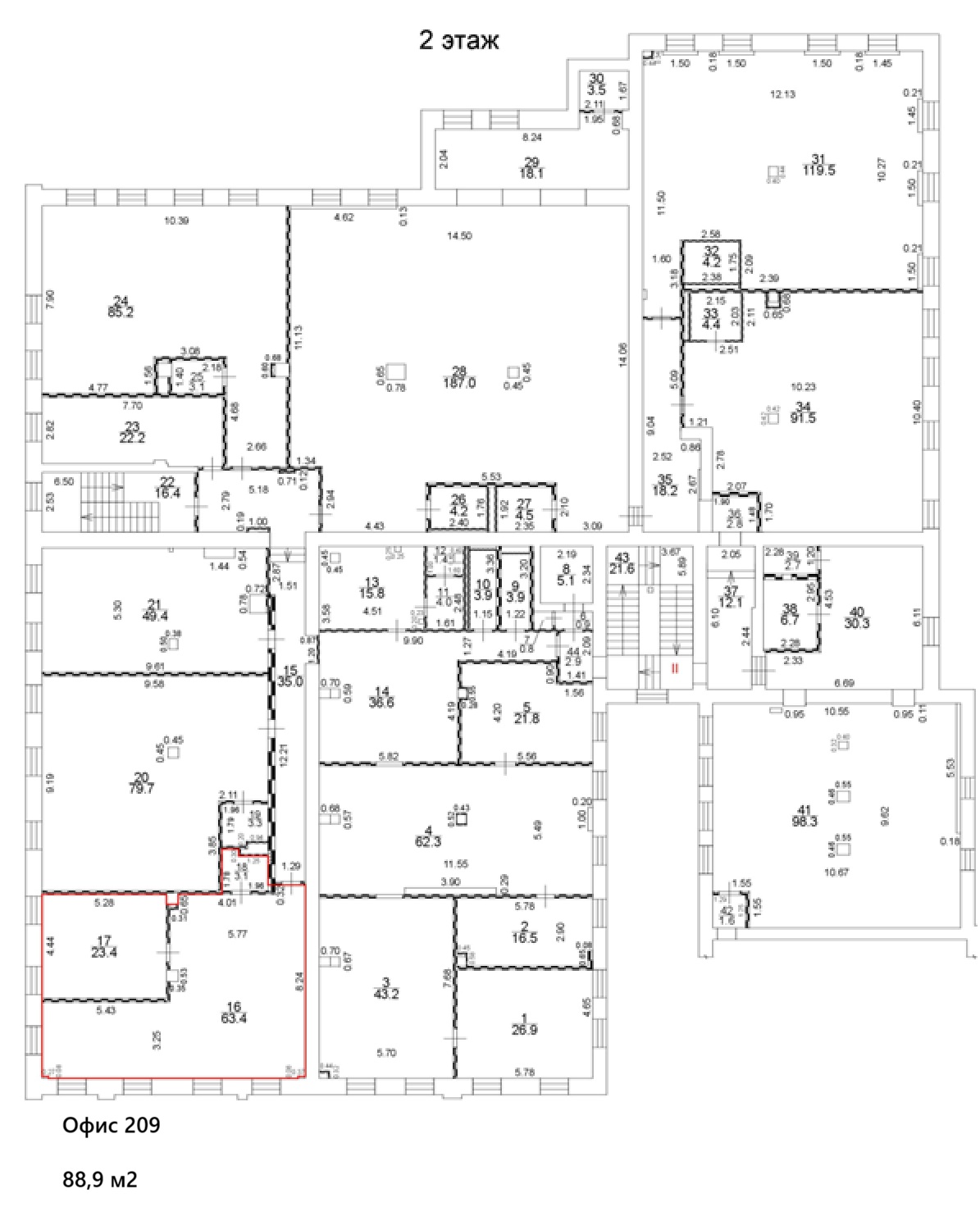
Продажа помещения 90 м2, офис 209

  • Большое количество окон.
  • свой с/у
90
2 этаж
Угловой блок
Узнать стоимость

Планировка помещения

План помещения
Генплан пространства

Лучшие типовые
помещения
для бизнеса

Сотрудничаем с Агентами и Агентствами недвижимости. Условия сотрудничества по сдаче наших площадей в аренду, можно узнать по телефону: +7 ( 495) 500 75 11

Контакты

8 (495) 500-75-11
Колодезный переулок, дом 3 стр 25
Вы можете позвонить нам в любое время с 9.00 - 21.00  без выходных и праздников
Заказать звонок